精选动态
-
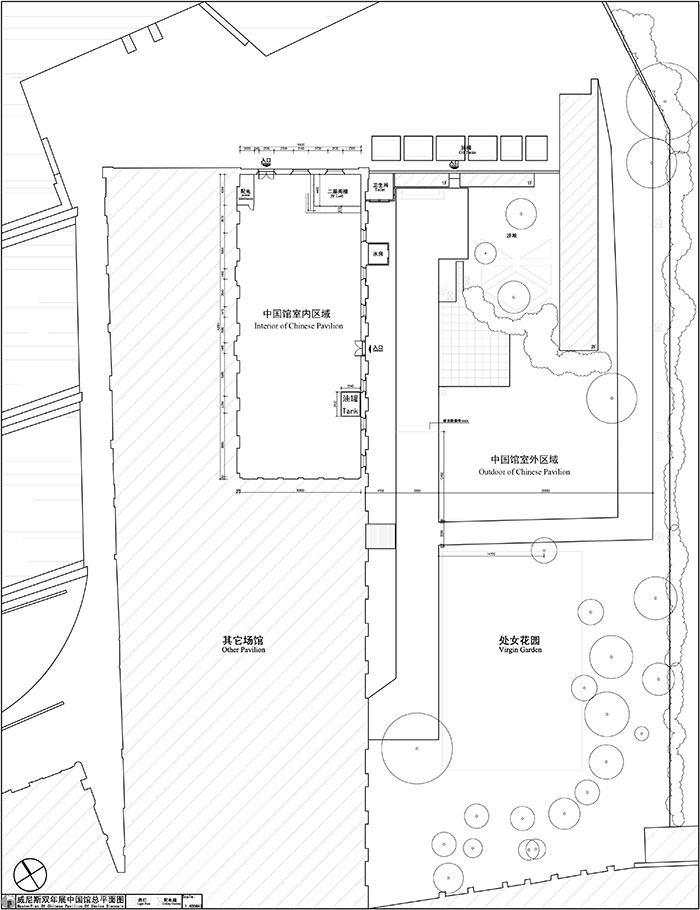
第18届威尼斯国际建筑双年展中国国家馆展览新闻通气会在京举行
本届中国国家馆展览将通过近40年来变化中的人居环境映射,从城市、自然与人民的视角,讲述一个独...
要闻 0 0 363 2023-10-21 15:05:52
-
《故乡与旅程——丁乙个展》开幕:“十示”和“星座”交相辉映
要闻 0 0 456 2023-10-24 16:15:01 -
周杰伦跨界艺术策展人 《艺起“杰”作》首展上海站融合原创音乐与艺术
展览将秉承他一直以来的人生信仰,在作品选择上透露出他对于友情、亲情和爱情的温暖歌颂~
展览 0 0 471 2023-10-16 00:00:00
-
屡次刷新亚洲纪录,黑人艺术将成艺术市场下一个宠儿?
在上周结束的周杰伦 x 苏富比「Contemporary Curated:Asia」拍卖专场...
艺评 0 0 351 2021-06-22 15:47:33
-
自称“女版毕加索”:她将绘画视为联结内在情感与外在世界的脐带
要闻 0 0 357 2023-10-21 16:07:02 -
柏林“分离派”大展【三】时代大潮中,命运各异的“她们”
相较于慕尼黑分离派和维也纳分离派,柏林分离派自成立之始起就向女性艺术家敞开大门,也是第一个接...
要闻 0 0 496 2023-11-13 01:30:01
-
在“和平”被赋予“鸟”之前,如何看见一只鸟?
要闻 0 0 6 2025-12-20 05:30:01

